B&B Ravena
RAVENNA.
For sale is a fully renovated luxury B&B, 7 km from Ravenna, behind Mirabilandia, set in a 5,000 sq m wooded park with parking, a swimming pool, and a volleyball court.
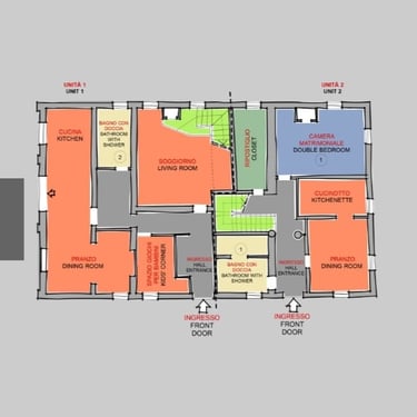
The entire farmhouse has been completely renovated with quality materials. Two units have been created, each with its own street number.
There are 6 double bedroom suites with 6 bathrooms, as well as living rooms and two kitchens, totaling 500 sq m. A real bargain, priced at €800,000.


Gallery
Provide a short description of the gallery, highlighting key things.

































